Autores
Peris + Toral
Año
2021
Sistema constructivo
Madera Contralaminada (CLT) Madera Laminada (Glulam)
Ubicación
Av. República Argentina 21, Cornellà de Llobregat, Barcelona
85 viviendas sociales en Cornellà
Portada
Imágenes
Planos
Detalles
+ Info

MODELO 3D

Archivos…

Fotógrafo/a
José Hevia
Promotor/a
Instituto Metropolitano de Promoción de Suelo (IMPSOL)
Consultores
Estructuras: Bernúz Fernández Instalaciones: L3J Tècnics Associats Dirección de ejecución: Joan March i Raurell Asesoramiento ambiental: Societat Orgànica Acústica: Àurea Acústica
Premios
2022 Ganador PREMIO ARQUITECTURA ESPAÑOLA CSCAE 2022 Finalista MIES VAN DER ROHE Award 2022 2022 Winner Eduwik Architecture Excellence Awards 2022 Best Multi-family Housing of the Year FUTURE HOUSE AWARDS 2022 Ganador Premio EGURTEK Edificación 2022 Honor Award WOOD DESIGN & BUILDING Award 2021 Winner Premio Europeo di Architettura MATILDE BAFFA UGO RIVOLTA 2021 Gold Award BEST ARCHITECTS 22 2021 Primer premio Premios MAPEI a la Arquitectura Sostenible 2021
Descripción
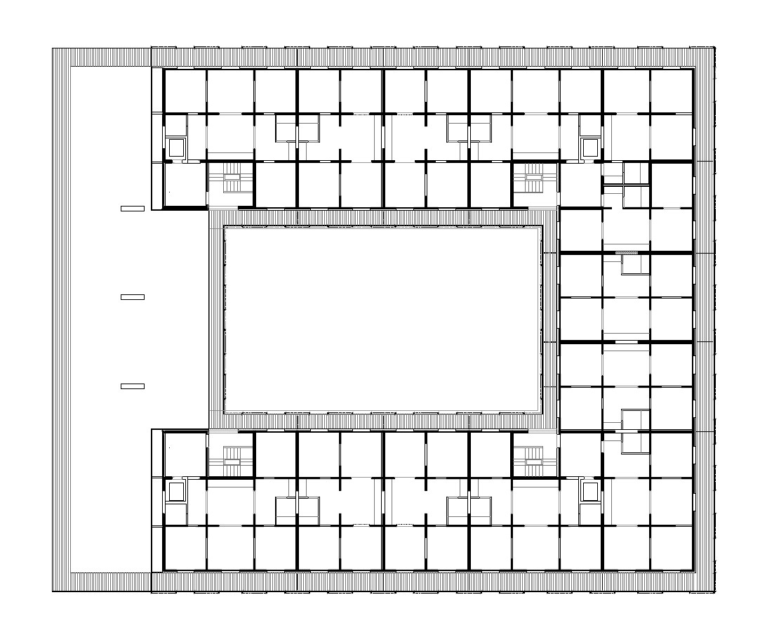
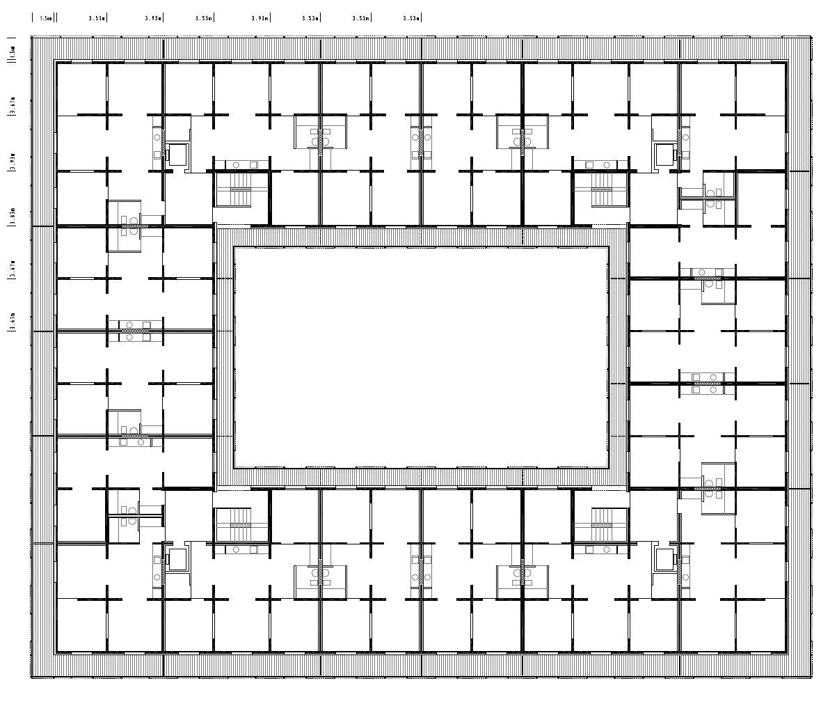
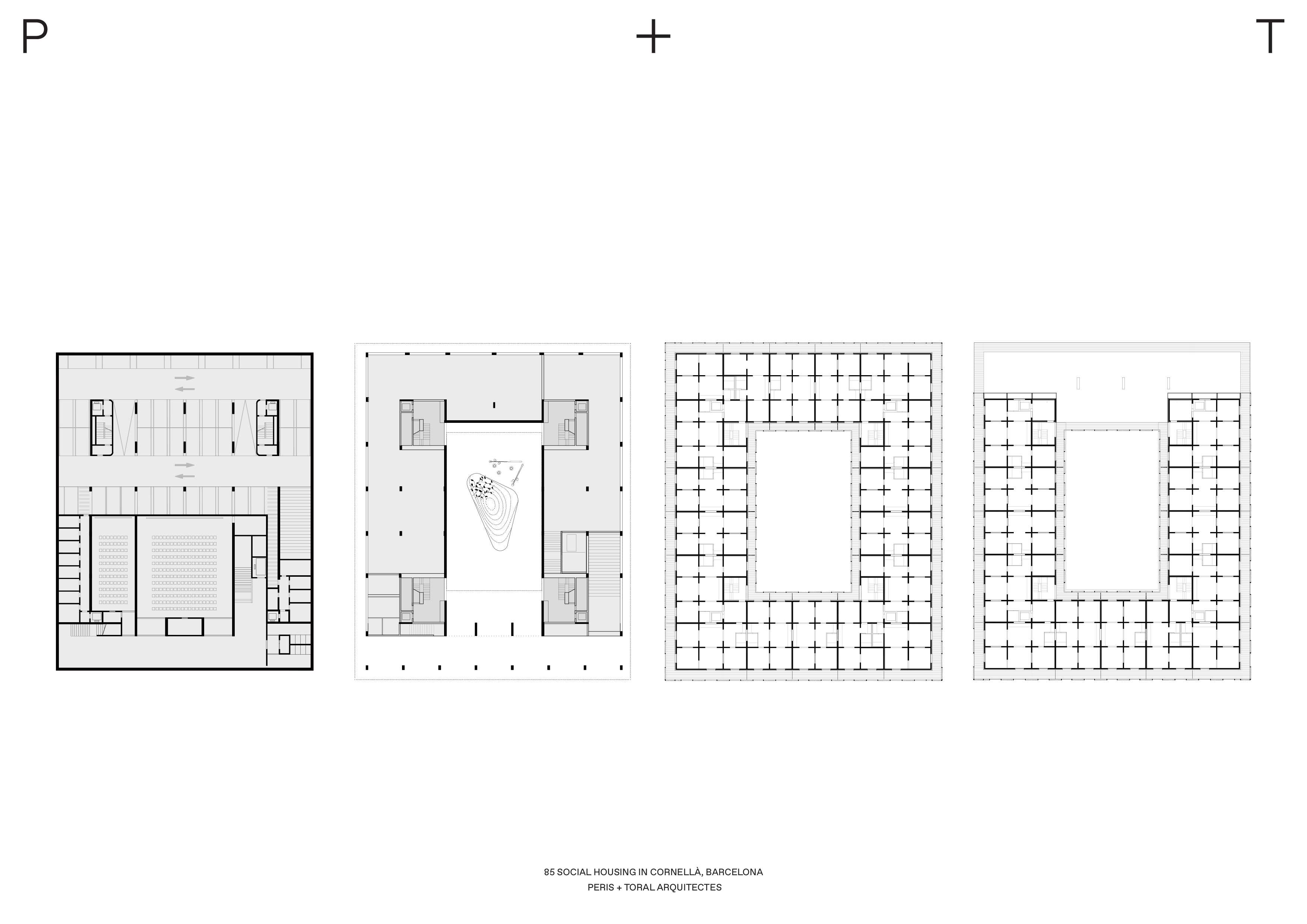
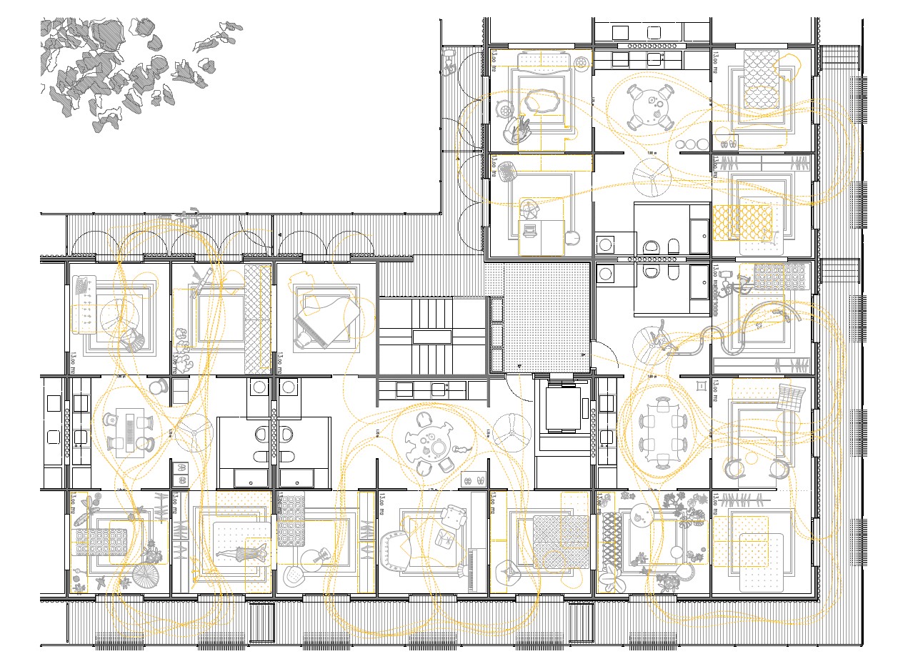
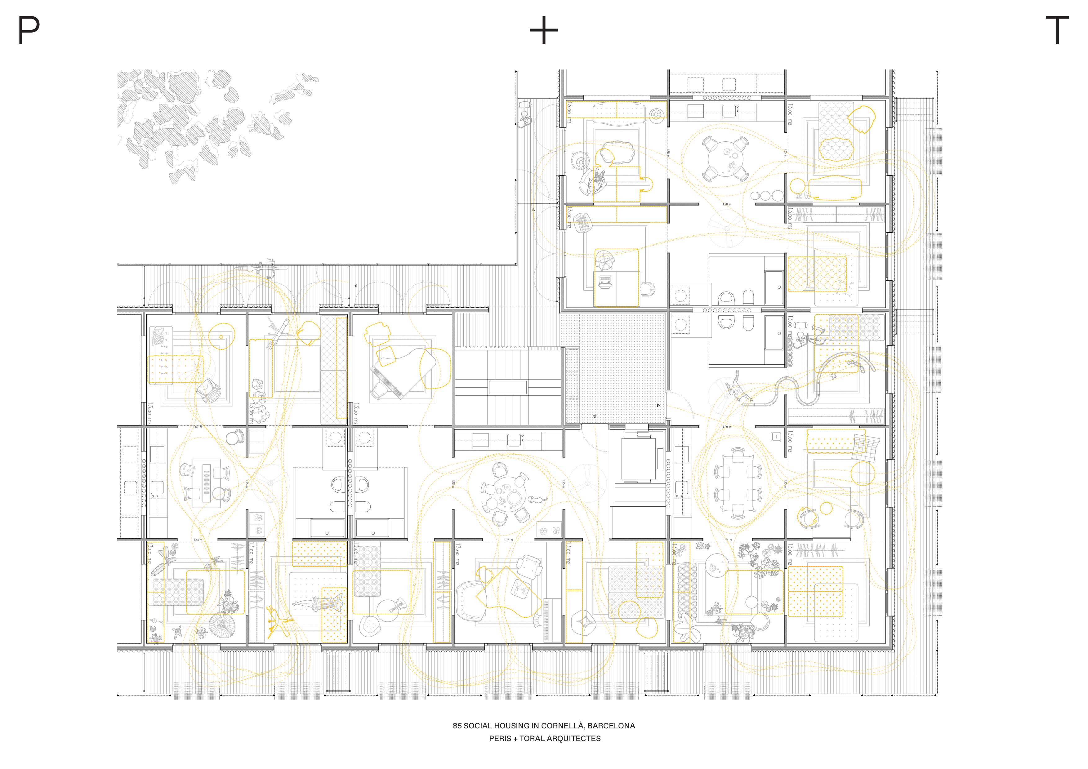
Para los 10.000 m² de superficie edificada del nuevo edificio ubicado en Cornellà de Llobregat (Barcelona), que consta de 85 viviendas sociales distribuidas en 5 alturas, se han utilizado un total de 8.300 m2 de madera KM0 procedente del País Vasco. El diseño de una matriz de habitaciones comunicantes, que elimina pasillos para garantizar el máximo aprovechamiento en planta, y el uso de la madera en favor de las posibilidades de industrialización del edificio, la mejora de la calidad de la construcción y la notable reducción de los plazos de ejecución y las emisiones de C02, son los ejes de este nuevo edificio de viviendas. La edificación se organiza alrededor de un patio que articula una secuencia de espacios intermedios. En planta baja, un pórtico abierto a la ciudad anticipa la puerta del edificio y filtra la relación entre el espacio público y el patio vecinal que actúa como una pequeña plaza para la comunidad. En lugar de entrar directa e independientemente desde la fachada exterior a cada vestíbulo del edificio, los cuatro núcleos de comunicación vertical se sitúan en las cuatro esquinas del patio, de manera que todos los vecinos confluyen y se encuentran en el patio-plaza, conformando un espacio seguro desde la perspectiva de género. En planta tipo, se accede a las viviendas a través del núcleo y de las terrazas privadas que conforman la corona de espacios exteriores que dan al patio. La planta general del edificio se organiza en una matriz de habitaciones comunicantes. Se trata de 114 espacios por planta, y 543 en el edificio, de dimensiones semejantes, que eliminan pasillos tanto privados como comunitarios para obtener el máximo aprovechamiento de la planta. Los espacios servidores se disponen en el anillo central mientras el resto de habitaciones de uso y tamaño indiferenciado, de unos 13m², discurren en fachada ofreciendo distintos modos de habitar. La superficie y proporción de las estancias permite generosas esquinas como soporte que facilita la apropiación del espacio. Otra terraza en la corona exterior completa la secuencia espacial, el enfilade de espacios interconectados por grandes aberturas, permeables al aire, la mirada y el paso. Las 85 viviendas se distribuyen en cuatro agrupaciones y un total de 18 viviendas por planta. Alrededor del núcleo se articulan cuatro o cinco viviendas, de manera que todas las tipologías tienen ventilación cruzada y doble orientación. Las viviendas constan entre cinco o seis módulos, según sean de dos o tres habitaciones. La cocina abierta e inclusiva se sitúa en la habitación central, actuando como pieza distribuidora que sustituye a los pasillos, a la vez que permite visibilizar el trabajo doméstico y evitar roles de género. La dimensión de las habitaciones, además de ofrecer una flexibilidad basada en la ambigüedad de uso y en la indeterminación funcional, permite una crujía estructural óptima para la estructura de madera. Al tratarse de vivienda social, para lograr la viabilidad económica se ha optimizado el volumen de madera necesario por m² de construcción hasta llegar a 0,24m³ por m² de superficie construida.

MAPA

85 viviendas sociales en Cornellà
Autores
Peris + Toral
Año
2021
Sistema constructivo
Madera Contralaminada (CLT) Madera Laminada (Glulam)
Ubicación
Av. República Argentina 21, Cornellà de Llobregat, Barcelona
Fotógrafo/a
José Hevia
Promotor/a
Instituto Metropolitano de Promoción de Suelo (IMPSOL)
Consultores
Estructuras: Bernúz Fernández Instalaciones: L3J Tècnics Associats Dirección de ejecución: Joan March i Raurell Asesoramiento ambiental: Societat Orgànica Acústica: Àurea Acústica
Premios
2022 Ganador PREMIO ARQUITECTURA ESPAÑOLA CSCAE 2022 Finalista MIES VAN DER ROHE Award 2022 2022 Winner Eduwik Architecture Excellence Awards 2022 Best Multi-family Housing of the Year FUTURE HOUSE AWARDS 2022 Ganador Premio EGURTEK Edificación 2022 Honor Award WOOD DESIGN & BUILDING Award 2021 Winner Premio Europeo di Architettura MATILDE BAFFA UGO RIVOLTA 2021 Gold Award BEST ARCHITECTS 22 2021 Primer premio Premios MAPEI a la Arquitectura Sostenible 2021
Descripción
Para los 10.000 m² de superficie edificada del nuevo edificio ubicado en Cornellà de Llobregat (Barcelona), que consta de 85 viviendas sociales distribuidas en 5 alturas, se han utilizado un total de 8.300 m2 de madera KM0 procedente del País Vasco. El diseño de una matriz de habitaciones comunicantes, que elimina pasillos para garantizar el máximo aprovechamiento en planta, y el uso de la madera en favor de las posibilidades de industrialización del edificio, la mejora de la calidad de la construcción y la notable reducción de los plazos de ejecución y las emisiones de C02, son los ejes de este nuevo edificio de viviendas. La edificación se organiza alrededor de un patio que articula una secuencia de espacios intermedios. En planta baja, un pórtico abierto a la ciudad anticipa la puerta del edificio y filtra la relación entre el espacio público y el patio vecinal que actúa como una pequeña plaza para la comunidad. En lugar de entrar directa e independientemente desde la fachada exterior a cada vestíbulo del edificio, los cuatro núcleos de comunicación vertical se sitúan en las cuatro esquinas del patio, de manera que todos los vecinos confluyen y se encuentran en el patio-plaza, conformando un espacio seguro desde la perspectiva de género. En planta tipo, se accede a las viviendas a través del núcleo y de las terrazas privadas que conforman la corona de espacios exteriores que dan al patio. La planta general del edificio se organiza en una matriz de habitaciones comunicantes. Se trata de 114 espacios por planta, y 543 en el edificio, de dimensiones semejantes, que eliminan pasillos tanto privados como comunitarios para obtener el máximo aprovechamiento de la planta. Los espacios servidores se disponen en el anillo central mientras el resto de habitaciones de uso y tamaño indiferenciado, de unos 13m², discurren en fachada ofreciendo distintos modos de habitar. La superficie y proporción de las estancias permite generosas esquinas como soporte que facilita la apropiación del espacio. Otra terraza en la corona exterior completa la secuencia espacial, el enfilade de espacios interconectados por grandes aberturas, permeables al aire, la mirada y el paso. Las 85 viviendas se distribuyen en cuatro agrupaciones y un total de 18 viviendas por planta. Alrededor del núcleo se articulan cuatro o cinco viviendas, de manera que todas las tipologías tienen ventilación cruzada y doble orientación. Las viviendas constan entre cinco o seis módulos, según sean de dos o tres habitaciones. La cocina abierta e inclusiva se sitúa en la habitación central, actuando como pieza distribuidora que sustituye a los pasillos, a la vez que permite visibilizar el trabajo doméstico y evitar roles de género. La dimensión de las habitaciones, además de ofrecer una flexibilidad basada en la ambigüedad de uso y en la indeterminación funcional, permite una crujía estructural óptima para la estructura de madera. Al tratarse de vivienda social, para lograr la viabilidad económica se ha optimizado el volumen de madera necesario por m² de construcción hasta llegar a 0,24m³ por m² de superficie construida.

MAPA